Er bestaan meerdere soorten control-boxen. Voor de Observer en de Air-gunner zijn aparte besturingskastjes gemaakt.
Om een beeld van de besturing van de gehele ARI-5206 is het wel handig om het blokschema te bekijken.
Hier zijn de controlboxes 260 en 276 getekend. .
De Control-Unit-Type 271.
Deze controlunit is bestemd voor de Observer en is niet geschikt om met een TR. 1366 te communiceren. De bediening en indicatie boven op het kastje ontbreken en er is geen derde connector onder aan de kast.
Dit is dus de 271.
De voorkant met alle bedienings organen.
De betekenis van alle knopjes en schalen op de 271.
Hier ziet de twee connectors.
Boven op het kastje alleen een dimmer-knopje om de verlichting van de schalen te dimmen.
STR 16 of STR 17 betekent waarschijnlijk een complete installatie waarbij de 16 voor het MF-gebied gedefinieerd is en 17 voor het HF-gebied.
De inhoud van de box.
De Control-Unit-Type 276.
Hiervan heb ik geen foto's. Ze zien er eender uit als de 271, maar hebben boven op het kastje een indicatie en schakelaar van de TR.1366 transceiver.
Het type 276, met drie connectors. De functies van de knoppen en schalen zijn voor alle types het zelfde.
De TR1366.ziet er zo uit, een zender-ontvanger met een paar kristal-gestuurde kanalen. Hiervan ontbreken mij de gegevens.
Control Unit Type 276, deze unit werd ingezet bij gebruik van een TR1366. Er zal waarschijnlijk ook een Type-276A bestaan voor 13 Volt. Deze ontbreekt echter in het manual. Van de schakelaar S2 (links boven) worden twee sets schakel-contacten gebruikt.
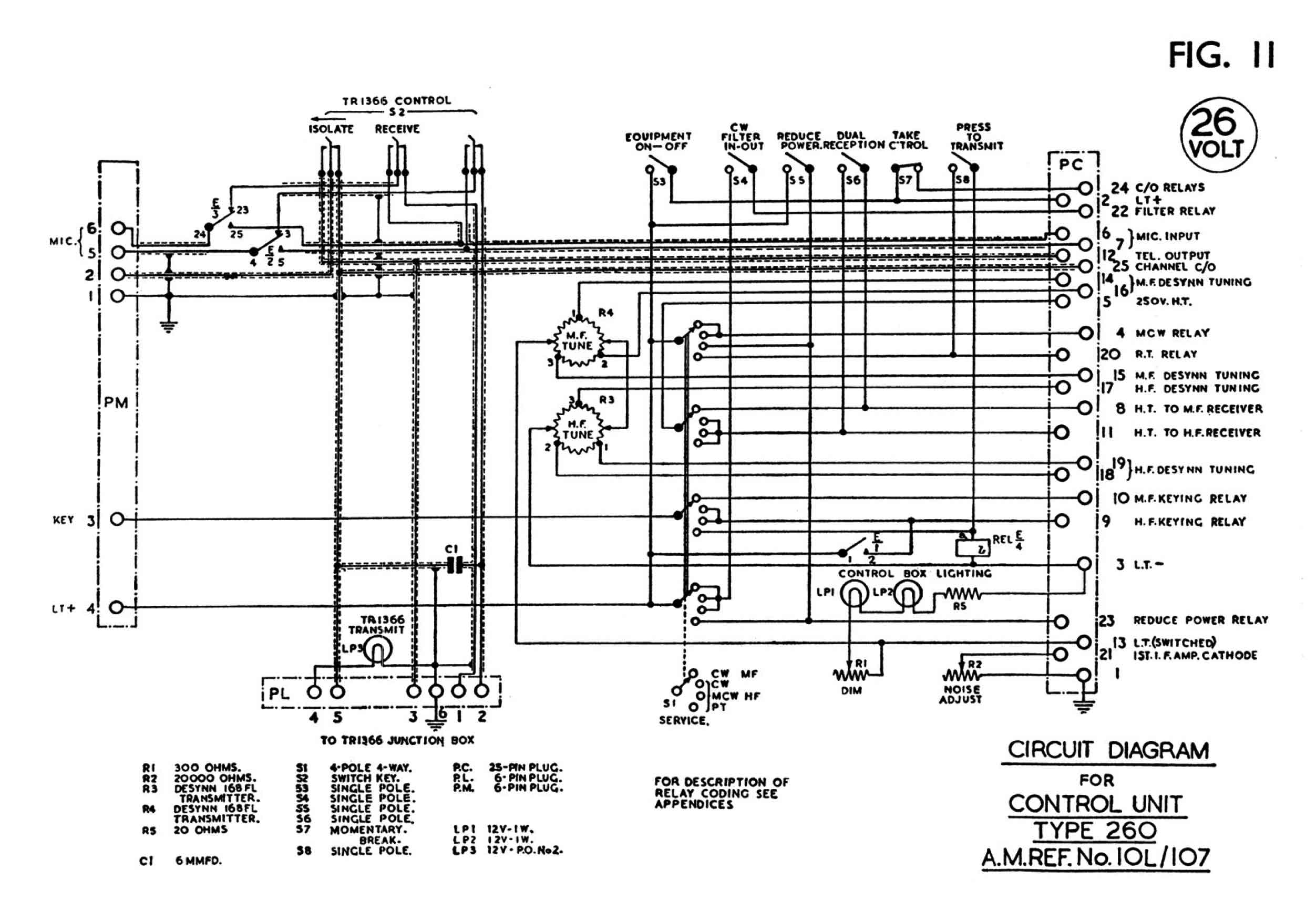
De Control-Unit-Type 260.
Deze controlbox is bestemd voor de Air-gunner.
De Control-Unit-Type 260, ook met drie connectors en een TR1366 Switch.

Op het schema is te zien dat er bij de schakelaar S2 (links boven) drie sets schakel-contacten gebruikt worden Verder is de functie?/stand van S7 anders.Dat zijn de enige verschillen met de 276..
De 13 Volt-versie.
Documentatie in pdf.
Technical Manual No. T.M./101 chapters 1 t/m 2
Technical Manual No. T.M./101 chapters 3 t/m 7
Technical Manual No. T.M./101 Schema's
Technical Manual No. T.M./101 Bedrading